Overview
- 1 Bedrooms
- 1 Bathrooms
- 39 m2
Property Description
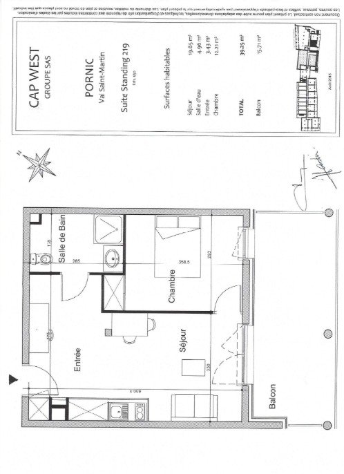
Make a secure rental investment in a tourist residence without worrying about management: the ideal product to build up your real estate assets while benefiting from a secure profitability thanks to stable rents, from the moment of acquisition. • Annual rent excluding tax: €6,276 • Profitability: 7.65% • Manager: Cap West You benefit from the depreciable LMNP tax status, allowing tax exemption on your rental income. The property is operated by a professional manager (Cap West), engaged by a commercial lease, ensuring the payment of rents from the moment of acquisition, whether the accommodation is rented or not. Description of the property: This one-bedroom apartment located on the 2nd floor offers a functional and optimized layout: comprising an entrance hall with cupboards, a living room with kitchenette, a bedroom with cupboard, WC, bathroom and a balcony, as well as indoor parking. Special conditions of occupancy: none About the residence: The Cap West residence is a tourist residence, ideally located in Pornic, close to shops, the port and the beaches of the Jade Coast. It benefits from a strategic address: 3 km from Pornic SNCF train station and approximately 46 km from Nantes Atlantique airport, which is a major asset for accessibility. The establishment offers furnished accommodation with hotel-like services. The residence offers comprehensive services: indoor parking, private balcony and modern amenities. It has a well-structured co-ownership. About the occupant manager: Cap West is a management company specializing in the operation of tourist residences, established for more than 25 years, and recognized for its know-how and solidity in the West of France. The diagnostics are currently being carried out. To receive more information about this property and to be put in touch directly with our local agent, Marine Faure, please fill in the form below.
- Principal and Interest


