Overview
- 1 Bedrooms
- 40 m2
Property Description
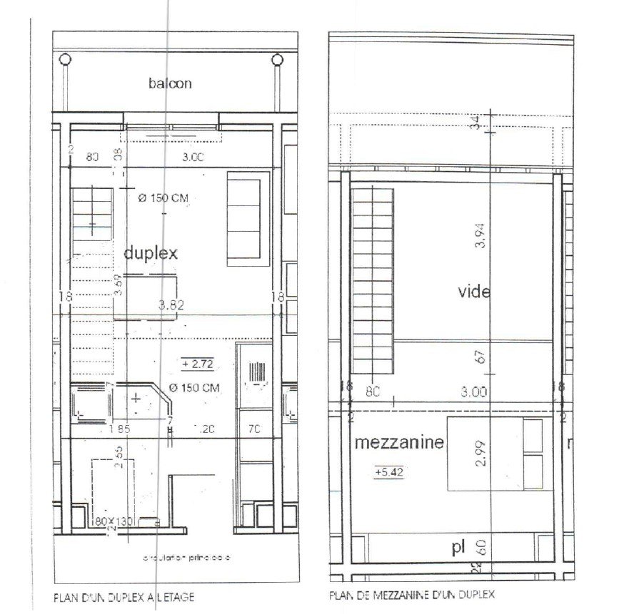
Make a secure rental investment in a serviced residence without the hassle of management: the ideal product to build your real estate portfolio while benefiting from guaranteed returns thanks to stable rents, right from the acquisition. • Annual rent excluding VAT: €5,998.16 • Return on investment: 8% • Management company: Cap West. You benefit from the LMNP (furnished rental) tax status, allowing for tax exemption on your rental income. The property is managed by a professional company (Cap West), bound by a commercial lease, guaranteeing you rent payments from the acquisition date, whether the apartment is occupied or not. Property description: This two-room duplex apartment located on the ground floor offers a functional and pleasant layout: an entrance with a kitchenette, a shower room with WC, a living room, and a mezzanine. A parking space completes this property. About the residence: The Cap West Chartres residence is a business residence ideally located in Chartres, near the city center, in the Parc d'Archevilliers business park, approximately 6 km from Chartres train station and close to major roads (A11 motorway) and Paris-Orly airport (approximately 80 km). Its location makes it highly attractive. The residence offers a full range of services: car and bicycle parking, video surveillance, disabled access, laundry facilities, a gym, and high-speed internet. The building comprises several dozen furnished and equipped apartments. About the management company: Cap West is a management company specializing in business residences, a subsidiary of the West Finance group, founded in 2004, present in several regions of France and recognized for its expertise in hotel-style operations. To receive more information about this property and to be put in touch directly with our local agent, Grégoire Déporte, please fill in the form below.
- Principal and Interest







