Overview
- 10 Bedrooms
- 1 Bathrooms
- 370 m2
- 1,000 m2
Property Description
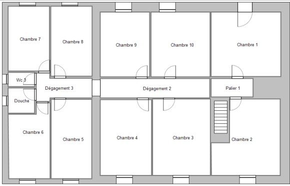
Former hospitality property offering approximately 560 sqm of usable space, arranged over three levels of around 170 sqm each, plus basement and attic conversion potential. The building is sold without any ongoing business, allowing immediate redevelopment. The layout supports a mixed-use strategy: main residential or professional use, targeted subdivision enabling the creation of an independent rental unit (former bar extension with bathroom and two bedrooms above, via private staircase), attic conversion into a high-volume loft following roof-slope insulation. The roof was renewed in 2020, significantly reducing structural risk. Mixed heating system (heat pump + oil boiler). Commercial kitchen supplied via gas tank. Located in a Rural Revitalisation Zone (ZRR), offering potential tax and social contribution incentives for eligible business or mixed-use projects, subject to regulations. A flexible asset suitable for phased development, combining occupancy, rental income and long-term value creation. Close to all amenities. Former Inn – Mixed-Use Project, Rental Potential and Development Opportunities This former restaurant and accommodation property, sold without any ongoing business, offers exceptional volumes, a clear and functional layout, and a strong structural base for a mixed-use project combining residential living with professional or rental activity. The building is arranged over three levels of approximately 170 sqm each, plus a basement. The ground floor comprises the former professional areas: reception, large hall, bar, 60 sqm kitchen with preparation area, sanitary facilities and ancillary rooms. These open and adaptable spaces allow for a wide range of reconfigurations, whether for residential use, activity-based purposes, or a combination of both. Targeted Rental Division – Former Bar Extension The current layout allows for a coherent and limited subdivision, without compromising the overall balance of the property. The extension currently used as a bar, together with the existing bathroom and the two bedrooms located above, could form an independent rental unit through the creation of a private staircase. This configuration enables the development of a separate rental income stream, while retaining the remainder of the building for private residence or professional use, subject to the necessary administrative approvals. Upper Floors and Conversion Potential The main upper floor is organised around a central corridor serving ten bedrooms and shared sanitary facilities. This level lends itself to multiple scenarios: large family residence, shared accommodation, guest rooms, or partial restructuring depending on the project. The attic level, currently divided into several distinct volumes, represents a key asset. With the installation of insulation beneath the roof slopes, this space could be converted into a spacious and characterful loft, benefiting from generous ceiling heights and architectural presence. Once developed, the total usable surface area reaches approximately 560 sqm. A basement level with cellar and boiler room is accessible via an internal staircase. Technical and Structural Information The roof was completely renewed in 2020, representing a major structural investment already completed. Mixed heating system: heat pump and oil-fired boiler. Kitchen supplied via gas tank. Strategic Location – Rural Revitalisation Zone (ZRR) The property is located in a Rural Revitalisation Zone (ZRR), a French government-designated area created to stimulate economic development in rural regions. For eligible projects, this status may provide potential tax relief and social contribution incentives, particularly for professional, hospitality or mixed-use activities, subject to current regulations and approval by the relevant authorities. A Flexible and Progressive Project Thanks to its extensive usable surface, including attic spaces, kitchen and technical areas, this property allows for a phased development approach: living on site while renovating, combining private use with targeted rental income, or gradually transforming the building according to long-term objectives. The structure is sound and offers a rare opportunity to shape a large-scale project with both residential and economic dimensions. Property sold unfurnished and without any ongoing activity. More pictures and Diagnostics available on request. Seller’s fees payable















